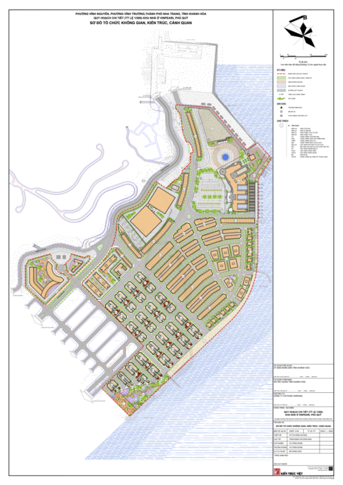
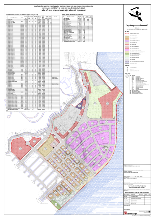
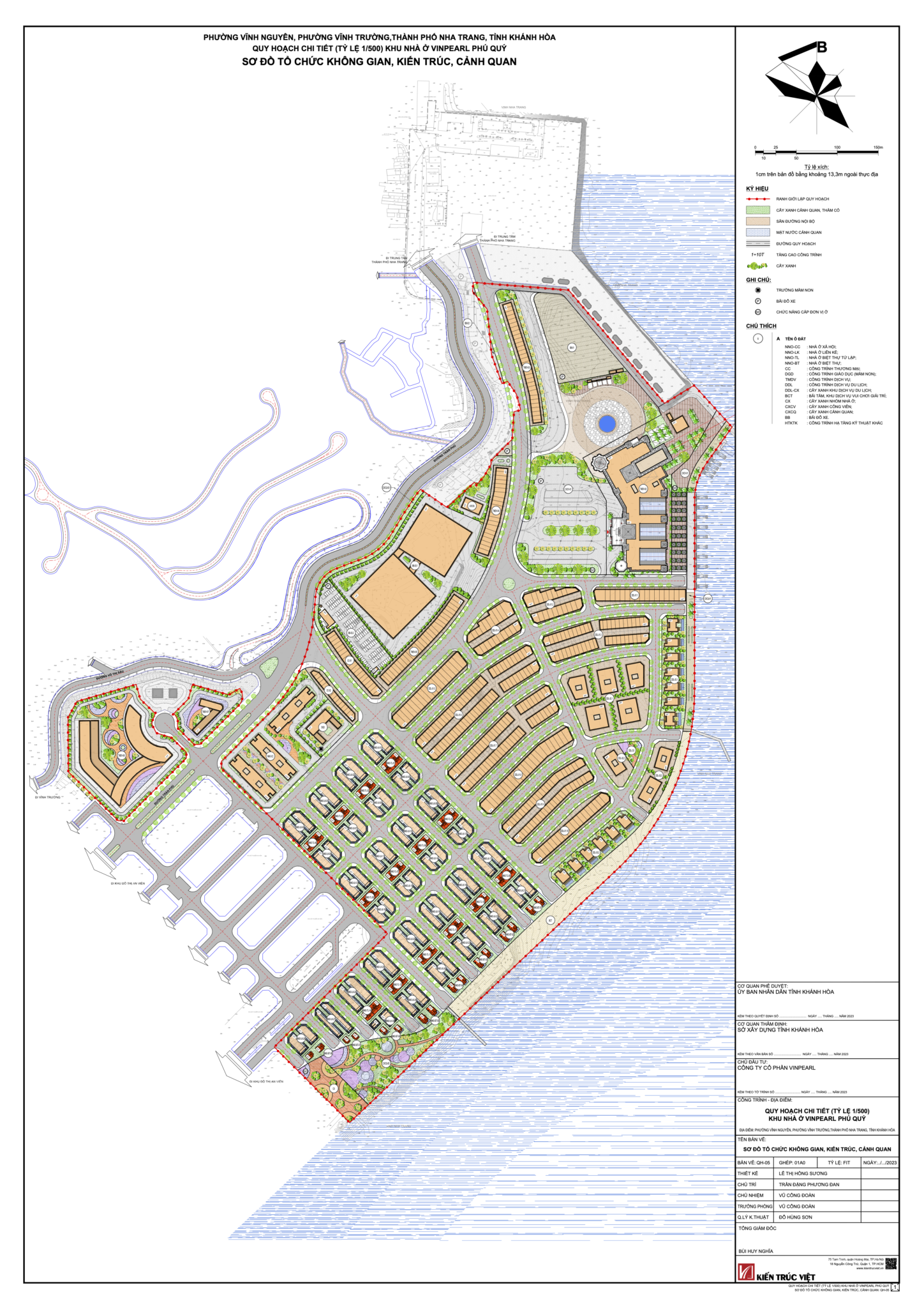
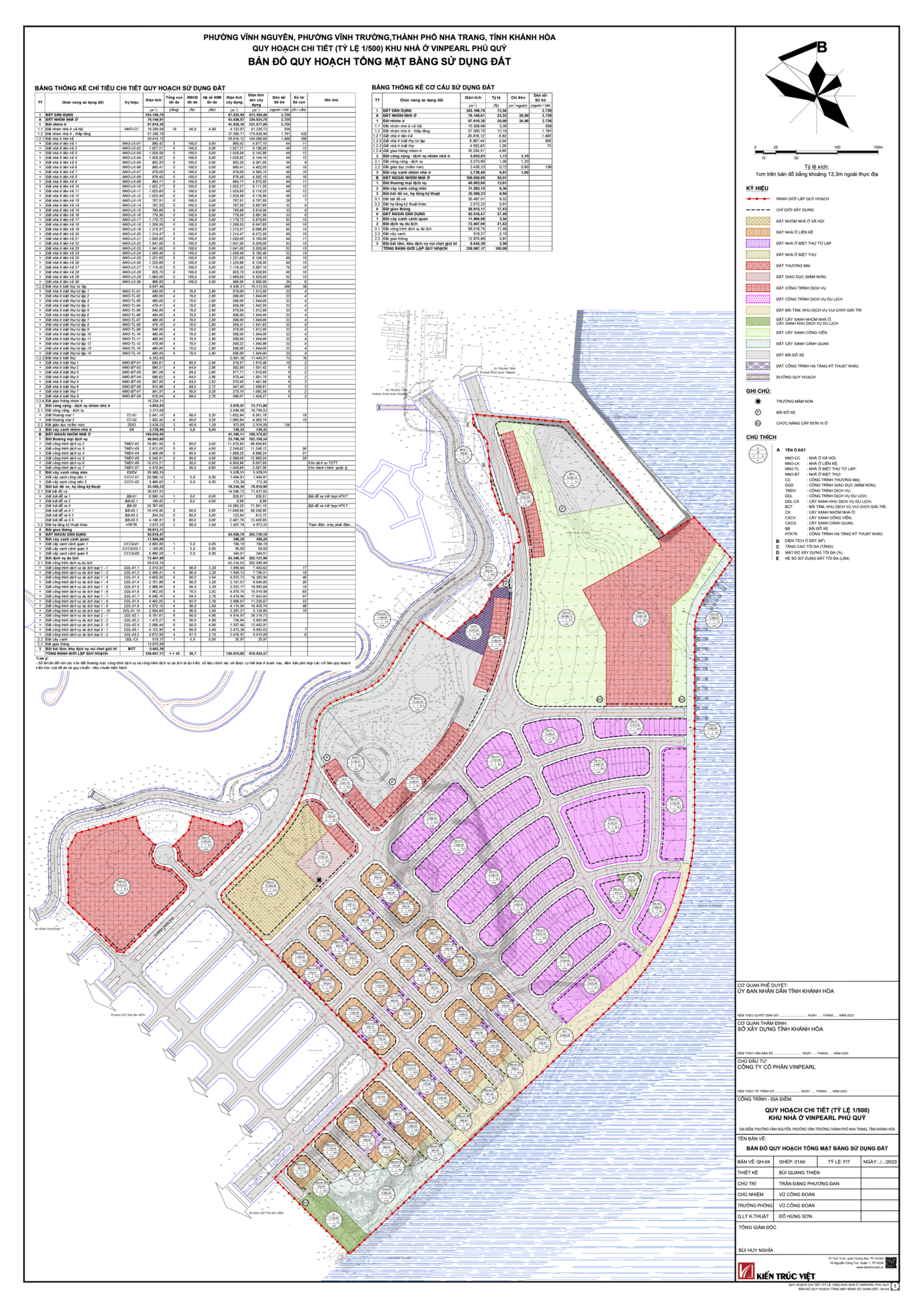
GIỚI THIỆU TỔNG QUAN VINPEARL PHÚ QUÝ
| Tên dự án: | Khu Nhà Ở Vinpearl Phú Quý |
| Vị trí dự án: | phường Vĩnh Nguyên, Vĩnh Trường, TP Nha Trang |
| Chủ đầu tư: | Vinhomes |
| Tổng diện tích: | 33,8 ha – Diện tích đất khoảng: 18,25ha – Diện tích mặt nước biển khoảng: 15,55ha |
| Quy mô: | Biệt thự nghỉ dưỡng, căn hộ cao cấp và nhà phố liền kề |
| Tổng đầu tư | 7.453 tỷ đồng. |
| Pháp lý: | Dự án Khu Nhà Ở Vinpearl Phú Quý được UBND tỉnh Khánh Hòa phê duyệt Đồ án Quy hoạch chi tiết (tỷ lệ 1/500) tại Quyết định số 2180/QĐ-UBND, ngày 15/9/2023. |

















Ad: 76 Quang Trung Lộc Thọ Nha Trang
Hotline: 0797979566
Email: Sale@duanonline.com.vn


